Rent Includes
Heat
Water & Sewer
Garbage & Recycling
Satellite TV
Parking
Apartment Features
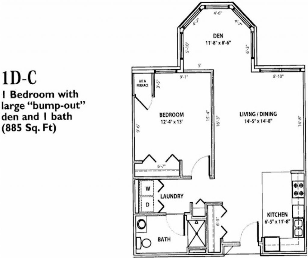
- Numerous floor plans to choose from – Most units have either a Bay Window or Balcony
- Washer and Dryer in each apartment
- Kitchen appliances include: Stove, Refrigerator, Dishwasher, and Microwave Oven
- Individually controlled heating and air conditioning
- Multiple phone jacks
- Cable hook-ups
- Fire Alarm and Sprinkler Systems
- 2 Bedroom Handicap accessible units available
Building Features
- Community Room with Fireplace
- Kitchen Area in Community Room
- Exercise Room
- Underground Heated Parking
- Above ground Parking
- Whirlpool Tub Room
- Entry Phone/Security System
- 2 Elevators
- Pop vending machine
- Storage Lockers are available for a fee.
Other Benefits
- Full-time maintenance staff to provide needed repairs and building upkeep.
- Located Downtown – Within walking distance to many businesses, services and attractions.
- No grass to mow
- No snow to blow
Eligibility and Income Limits
View Chauncey Apartments Price List.
Rental Prices Effective 10/30/2025




















